Beschrijving

Een zeer ruime vrijstaande woning die ook nog geheel onderkelderd is. De woning ligt op een groot perceel van 1.015 m² met ook nog een grote garage/ hobbyruimte van ruim 70 m² met vliering.

De woning is in goede staat, biedt veel ruimte om ruimschoots te genieten op deze mooie en rustige locatie. Holthees ligt op korte afstand van Venray en Boxmeer met aldaar alle voorzieningen. De woning ligt op een paar minuten van het treinstation Vierlingsbeek, maar u  bent via de A73 ook binnen een half uurtje in Nijmegen en Venlo.

HEEFT U INTERESSE? Laat het ons weten door een bezichtiging aan te vragen of een contactverzoek in te dienen via deze website. U zult zo snel als mogelijk worden gebeld om een afspraak te maken.

Indeling:

Souterrain:  In de centrale hal met plaatsing van de waterontharder de trap naar de begane grond. Vanuit deze hal naar de provisiekelder, een verwarmde hobbyruimte/atelier of speelkamer met klein keukenblokje en de toegang naar de berging met plaatsing van het witgoed, de cv-ketel en het waterfilter.  Deze laatste ruimte is ook rechtstreeks vanuit de tuin bereikbaar.

Begane grond: De vloeren zijn grotendeels voorzien van een plavuizen vloer met vloerverwarming. Via de overdekte entree komt u in de hal van de woning. Direct in de hal de toegang naar een slaapkamer met eigen badkamer. Tevens in de hal de toegang naar de toiletruimte. De L-vormige woonkamer bestaat uit een zit- en eetgedeelte met openslaande deuren naar het terras. In de woonkamer hangt een airco-unit. Direct aansluitend de keukenruimte met een hoekkeuken voorzien van diverse apparatuur. Vanuit de keuken naar de bijkeuken met klein keukenblokje en de loopdeur naar de naast de woning gelegen oprit.

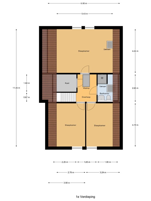
1e verdieping: Vanaf de overloop heeft u toegang naar 3 grote slaapkamers, de badkamer met toilet, douchecabine en wastafel. Op de overloop een bergkast met plaatsing van de omvormer voor de zonnepanelen en de vlizotrap naar de ruime bergzolder.

Rondom de woning een grote tuin met diverse mogelijkheden voor hobby, speelruimte, zwembad of net wat u graag wilt.
De grote garage heeft aan de voorzijde 2 elektrische sectionaaldeuren. De garage is ruim 12 meter diep, dus nog volop mogelijkheden achter de opstelplaats van de auto’s. In de garage een trap naar de vliering.

Oplevering van de woning is op korte termijn mogelijk.

Verkopers verlangen een waarborgsom of bankgarantie ter grootte van 10% van de koopsom.

Ons kantoor zorgt ervoor dat de gepubliceerde gegevens zo betrouwbaar en actueel mogelijk zijn. Alle belangrijke informatie is te vinden op deze website. Onjuistheden en onvolledigheden kunnen echter voorkomen. Aan de door ons gepresenteerde gegevens waaronder de teksten en plattegronden kunnen geen rechten worden ontleend. Twijfelt u aan de juistheid van de gegevens, vraag dan hoe deze zijn verkregen of kom nog een keer kijken. Probeer te allen tijde alle voor u relevante informatie vooraf te verkrijgen.

Kenmerken